Игривая наивность
| Площадь: | 52.00м2 |
| Кол-во комнат: | 1 |
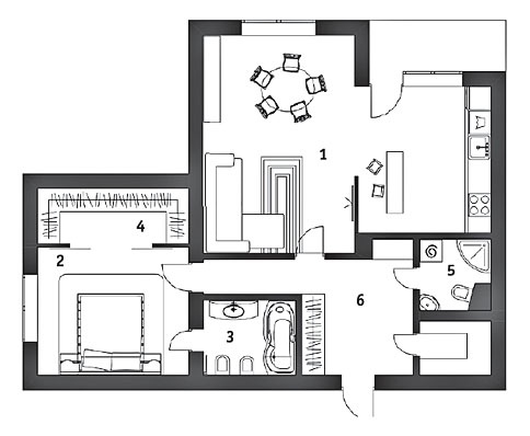
Экспликация:
1. Студио
2. Спальня
3. Ванная комната
4. Гардеробная
5. Санузел
6. Холл
Пожелание заказчика Молодая пара была удивительно целостна в своем стремлении создать пространство в современном ключе без показной роскоши и излишеств. Все должно быть максимально функциональным и органичным.
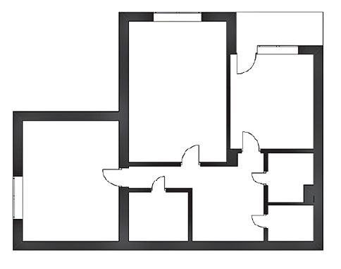
Перепланировка «Как можно больше света и открытого пространства, долой перегородки!» – таков главный девиз. В результате получилась просторная и светлая студио с тремя зонами: гостиная, столовая и кухня. Часть спальни отделена под гардеробную с раздвижной конструкцией. Образовалась приватная ванная комната хозяев со входом из спальни.
Стилистическое решение Минимализм не теряет актуальностиь – это, попрежнему, идеальная среда для комфортного проживания с ее простыми, лаконичными формами и естественной природной колористикой. В оформлении интерьера использовались натуральные материалы, изысканные и благородные фактуры. Оживляет монохромную дымчатосероголубую гамму насыщенный цвет горького шоколада. Черный натяжной потолок создает ощущение целостности и законченности. Рабочая зона кухни спрятана за раздвижной системой, превращая ее в элегантную столовую. Фасадный рисунок «лилия» подчеркивает стильную изысканность и непорочность обстановки. Строгие геометрические линии визуально увеличивают помещения. Гобразный диван со множеством подушек приглашает к кинопросмотру в дружеской компании. Приватная часть квартиры состоит из спальни, гардеробной и ванной комнаты. Спальня выполнена в легкой романтичной манере, которую придают ей волнообразные гипсокартонные конструкции над изголовьем кровати и на потолке. Зеркальная поверхность стен зрительно расширяет пространство комнаты.
Источник: Перепланировка квартир №4, 2012. Веб-диск
Смотрите также
Кухня
Как выбрать микроволновую печь для дома?Кухню оборудуют самой удобной и практичной техникой, которая поможет сэкономить время и быстро управиться с приготовлением полезной пищи. Одним из таких помощников является и микроволновая печь.
Особенности выбора кухонной мойкиКухонные мойки бывают квадратные, прямоугольные, круглые, треугольные, пяти- и шестиугольные.
Кухонная вытяжка: как подобрать и где купить дешевоВытяжка для кухни — отличное средство сделать самую популярную комнату комфортной. Никаких неприятных запахов и дыма: с вытяжкой на кухне будет приятно общаться, смотреть телевизор, лакомиться вкусными блюдами.
Особенности кухонных вытяжекИтак, кухонная вытяжка работает на очищение воздуха от жира, копоти и пыли, которые образуются в процессе приготовления пищи.
Выбираем кухню правильно: удобная расстановка и материал кухонного гарнитураДеятельность на кухне условно подразделяется на 3 вида: хранение, разделывание продуктов и приготовление.
Ремонт кухни: этапы проведения работНезависимо от того, будете ли вы проводить его самостоятельно или же наймете для этой цели специалистов, необходимо четко определиться с объемами и последовательностью проведения работ.
Ремонт смесителя своими рукамиКак это не удивительно, но одним из главных и наиболее часто используемых предметов на кухне, является именно смеситель.
Как не ошибиться в выборе посуды?В наше время производители различных стран предлагают огромный выбор посуды на любой вкус и кошелек. У потребителя «разбегаются глаза» и встает все тот же вопрос, так какую же выбрать?
Флэт-виниловые обоиБольшой шаг вперед сделан производителями отделочных материалов, сегодня даже не располагая внушительными финансовыми средствами, потребители могут создать респектабельный интерьер своего жилья.
Все, что нужно знать при ремонте малогабаритной кухни своими рукамиГлавное, на что нужно обратить внимание, это рациональное использование пространства, организация рабочего места. Правильный выбор мебели является существенным шагом для достижения поставленной цели. Что лучше подходит для малогабаритной кухни?
Мифы про фильтры обратного осмосаРасчет реальной стоимости и преимущаеста использования фильтров обратного осмоса.
Выбор качественной мебели для кухниЧтобы выбранная мебель для кухни придала Вашему дому максимальный комфорт, функциональность и занимала минимальную площадь, следует уделить особое внимание комплектующим составляющим.
Уютная кухня – не только мамин кабинетИменно кухня является сердцем квартиры. Чтобы сделать её уютной и просторной следует прислушаться к нескольким не сложным правилам.
Кухни модерн в дереве и пластике Естественно, многие модели кухни в стиле модерн, которые идут с пластиковыми фасадами, практически повторяют форму деревянных кухонь.
Характерные черты кухни, оформленной в стиле модерн Естественно, отличительной чертой кухни в стиле модерн является отсутствие большого количества текстиля и аксессуаров. Основным предметом считается сама кухня, то есть именно она является главной.
Glas Tec Satin 17W WeiSZ Nature 564 Eiche PlatinФасад матовое закаленное стекло / шпон. 25 мм столешница черная шероховатая.
Alpha Lack 551 WeiSZ Hochglanz Alpha Lack 55R Rosso HochglanzФасад Белый / красный зеркальный глянцевый лак.
Nova Lack 731 WeiSZ Hochglanz Nova Lack 73C Curry HochglanzФасад натуральный многослойный глянцевый лак.
Nature 567 Eiche Mokka Glas Tec Plus 168 Sahara HochglanzФасад шпонированный / глянцевое закаленное стекло.
Glas Tec Satin 17Q Quarzgrau / Glas Tec Satin 17W WeiSZФасады из матового закаленного стекла белого и графитоного цвета.
Питьевая вода. Покупать или фильтровать?Если задуматься: какими качествами должна обладать столовая вода для безопасного употребления в чистом виде и приготовления пищи?
Как освежить кухонное пространство с минимальными затратамиПредставляем вашему вниманию несколько советов по обновлению интерьера кухни, которые не требуют особых затрат. Экономным, но креативным хозяйкам.
Подключение стиральной машиныКак правильно подключить стиральную машинку. Как выбрать место, подготовить, и что нужно учитывать при подключении.
Пространство кухни: планируем оптимальный дизайнЕсли задуматься над тем, сколько времени мы проводим на кухне, сколько долгих километров проходим по ней, то поймем, как важно иметь кухню, которая сочетает в себе дизайн и удобство для пользователя. Хотя внешний вид действительно является важным фактором, удобство все же гораздо приоритетнее.
Кухня в деталях: зоны контроляКухня XXI века значительно от личается от кухни прошлого столетия. Преимущество современного кухонного дизайна состоит в том, что мебель и техника стали более компактными и эргономичными. Это позволяет эффективно использовать каждый сантиметр кухни, что особенно важно для небольших помещений. Уходят в прошлое громоздкие холодильники, загораживающие про ход, плиты, за которыми вечно скапливается грязь, и микроволновые печи, крадущие так много места на столешнице. Соло-элементы сейчас не в моде.
Вытяжки Zirtal стали работать тишеШум от работающей вытяжки Zirtal уменьшен на 15%. Компания-производитель Zirtal снабдила некоторые модели кухонных вытяжек шумопоглощающими панелями. Общий уровень шума от вытяжки, оборудованной такой панелью, даже в самом интенсивном режиме работы не превысит 32-53 Дб.
Несколько слов о дизайне кухниУзнайте, как красиво оформить кухню, какие стили и цвета сегодня популярны, какие отделочные материалы и какую мебель выбрать.
Посудный рядСовременные магазины предлагают такое разнообразие посуды, что даже самой истинной ценительнице кухонных принадлежностей трудно разобраться во всем этом изобилии. Давайте попробуем разложить все по полкам!
Мытье посуды со знаком "Эко"В течение года в наш организм попадает до полутора литров моющего средства. И если оно отмывает жир с посуды, то что же оно отмывает у нас внутри? Мы решили разобраться...
Техника для здоровой пищиВ последнее время репутация пароварки кардинально изменилась. Если раньше блюда на пару ассоциировались с диетическим режимом питания не вполне здоровых людей, то теперь они желанны в рационе практически каждого человека. И не зря, ведь пища, приготовленная на пару, вкусна, питательна и очень полезна.
Измельчающий помощникБЛЕНДЕР сложно назвать королем кухни, он скорее невидимая, но очень трудолюбивая золушка. Лишь блендер может разрешить ряд важных кулинарных проблем, лишь ему по силам универсальные задачи, с которыми другим приборам не справиться. Не зря блендер входит в комплект любого качественного кухонного комбайна.
Покупаем кухонную плитуИспокон веков главенствующая роль в кухне по праву принадлежала плите, и сегодня, как и много лет назад, именно от нее во многом зависит, насколько удобно хозяйке готовить, и насколько вкусным, качественным получится блюдо.
Истина в водеФильтры для воды отличаются друг от друга своей конструкцией и техническими параметрами. Поэтому, выбирая фильтр, нужно для начала определить свои потребности и возможности.
Фартушек для кухонькиФАРТУК – защитное покрытие, оно надевается на кухонные стены выразительная часть декора, которая иногда задает тон, а иногда становится изысканной изюминкой.
Вся правда о ложных окнахЭти окна не надо устанавливать и даже мыть. Их можно просто нарисовать, вышить или просто наклеить. Ложные или фальш-окна – это возможность легко и просто создать дополнительное окно практически на «пустом месте». К тому же создание фальш-окон это еще и декор стен, делающий помещение более уютным и стильным.
Смеситель 2014: функция+дизайнКлассический кухонный треугольник – холодильник-плита-мойка, где мойка – вершина треугольника, а центр вершины – смеситель.
Экология кухниЗапах готовой пищи возбуждает аппетит. Но бывают в кухне и другие, куда менее приятные запахи – пригорающие жиры и масла, которые кроме запахов оставляют еще трудно вымываемую корку на плите и мебели. Спасение – правильно налаженная кухонная вытяжка.
В помощь ФедореБич кухни – грязная посуда. Борьба с ней – дело неприятное и хлопотное. И быть этой битве изо дня в день, из года в год, если только в дело не вступает помощница – посудомоечная машина.
Встройка по понятиямТехника – это 40-60% стоимости кухни и 70% функционала. От ее выбора зависит удобство кухни и КПД работы хозяйки. И первый вопрос, который возникает при планировании – техника встроенная или отдельно стоящая, иными словами – соло? встраиваемая техника как выбрать
Потолочное решениеС точки зрения отделочных работ кухня – помещение капризное. Она подвергается термическим нагрузкам (плита, духовка и т.д.) и находится в условиях повышенной влажности (испарения от кипящих кастрюль и чайников). Потому обустройство потолка требует особого внимания.
Капризные мойки (Рейтинг самых капризных моек по материалу изготовления)О достоинствах моек из того или иного материала пишут и печатают предостаточно. А наш журнал предлагает поговорить о «капризах» и недостатках. Предлагаем читателям рейтинг самых капризных моек – а уж ваше дело, мириться ли с недостатками или выбрать «идеального» и надежного помощника на кухне. мойки гранитные для кухни
Чем едим, господа?На срок жизни влияет качество посуды и приборов, которыми мы ее едим. Здесь очень важен материал — это может быть алюминий, чугун, медь, нержавеющая сталь или сплав нержавеющих металлов.
Карниз или каприз?Можно просто купить карниз и повесить на него обычные шторы. А можно проявить немного фантазии и превратить кухонное окно в свой каприз — замечательный декоративный объект на вашей кухне. А мы своими советами поможем в этом.
Огород - круглый годМорозильный шкаф — незаменимый прибор для любителей свежих фруктов и овощей. С его помощью можно круглый год пополнять стол продуктами со своего дачного участка.
Макро возможности микроволнНевозможно себе представить современную кухню без микроволновой печи. Размораживание, приготовление полуфабрикатов, подогрев готовых блюд — функции, с которыми без труда справится этот прибор. А невысокая цена и простота использования данного агрегата снискали ему заслуженную позицию.
Кухонный измельчительО диспозере мы знаем немного, в то время как весь остальной мир с успехом им пользуется. Но, как уже бывало не раз, через пару лет данное устройство будет присутствовать на любой кухне.
Роман с камнемПри оформлении кухни отделочным материалам часто отводится второстепенная роль. А зря, ведь с помощью такого отделочного материала, как искусственный или натуральный камень можно создать уникальный дизайн вашей кухни.
Свет по советуОт освещения в кухне зависят интерьер, уют, настроение, качество приготовленной пищи и… Список можно продолжать, но мы перейдем ближе к свету.
Интерьерные мечты сбываются!Осуществление мечты достойно восхищения. Редакция присутствовала при осуществлении мечты — в Запорожье открылся интерьерный салон будущего.
Стилевые откровенияИнтерьер начинается со стиля. Кухня начинается с интерьера. Кухня, выдержанная в стиле, — это не дань моде, это эстетическая составляющая интерьера. Дизайнеры о стилях и кухнях.
Кухонный помощник
Кухонный комбайн — самый верный помощник хозяйке на кухне. Именно он проявляет себя в тех делах, на которые у хозяйки всегда не хватает времени или сил – мелит, режет, взбивает массу или выдавливает сок. И поэтому комбайн никогда не будет бесполезным пылящимся прибором, он всегда актуален.
Королева кухни
В любом помещении есть самый важный предмет. В спальне — это кровать, в ванной комнате — ванна, а в кухне —плита.
Шпаргалка для покупателя: как выбрать кухонную мойку
Мы уже писали в нашем журнале, какие бывают мойки: типы, виды и материалы, из которых их изготавливают.
Сегодня предлагаем ряд рекомендаций, следуя которым наши читатели смогут выбрать хорошую, долговечную и современную мойку для своей кухни.8 шагов грамотной сервировки стола
Нож справа, вилка слева — это знает каждый. А вот в каком порядке расположить четыре вида персональных ножей и столько же вилок и ложек, найти правильное место для пирожковой тарелки и не переборщить со свечами или незабудками? Сервировка — это не «пыль в глаза», а творческий процесс, способный превратить даже рядовой ужин в настоящий праздник.
Талисманы и обереги на кухне
Из разных культур и народностей из глубины веков в наш быт пришли магические талисманы, охранные обереги и чудодейственные амулеты. Чаще всего славяне устанавливали их у себя в домах для охраны домашнего очага. С появлением кухни как отдельного помещения такие обереги перебрались из жилых комнат поближе к очагу, и кроме своего сакрального значения стали частью декора и украшением. Читайте также статьи о кухонных принадлежностях.
История кухни
Еще 150 лет назад кухня, как место для приготовления пищи, была далеко не значимой частью жилища: там в основном хозяйничала прислуга, стоял дым коромыслом и чадила печь.
Кухня от шеф дизайнера
Кулинарный шедевр состоит на 50% из правильно подобранных ингредиентов и на 50% из мастерства шеф-повара. Который, кстати, и подбирает пропорции и ингредиенты рецепта. Способность видеть общее, обратив внимание на детали, — качество настоящего Мастера. Мастера, который создает любой шедевр — кулинарный или интерьерный.
Ванна
Преимущества бойлеров косвенного нагрева из нержавейкиПочему бойлеры косвенного нагрева пользуются популярностью среди потребителей?
Почему за ванной лучше идти в магазин сантехники?Ванны изготавливаются из разных материалов, в зависимости от чего они и классифицируются на чугунные, акриловые, стальные и квариловые.
Почему стоит выбрать накопительный бойлер для дома?Накопительный бойлер – это современный прибор, функция которого состоит в круглосуточном обеспечении жилья горячей водой. Он представляет из себя большой бак, внутри которого установлен нагревательный элемент.
Раздвижные двери душевой кабины – оптимальный способ экономии пространстваРаздвижные системы – это эффективный способ сэкономить и без того ценное пространство в ванной комнате. Такая конструкция позволит обустроить полноценное место для принятия водных процедур и сделает комнату более удобной и визуально привлекательней. А благодаря огромному разнообразию конструкций и их дизайна, размеров и форм, каждый сможет подобрать для себя наиболее практичный вариант.










































Комментарии
Оставить комментарийВы не зарегистрированные на сайте. Авторизуйтесь или зарегистрируйтесь пожалуйста.